Save
Ask
Tour
Hide
$650,000
5 Days On Site
543 Oxford RoadOxford, CT 06478
For Sale|Unimproved Land|Active
0
Beds
0
Total Baths
County:
New Haven
Listing courtesy of Steven Lage of Coldwell Banker Realty Office Phone: (203) 452-3700
Broker Contact: (203) 521-7757
Call Now: (203) 281-3400
Is this the listing for you? We can help make it yours.
(203) 281-3400


Save
Ask
Tour
Hide
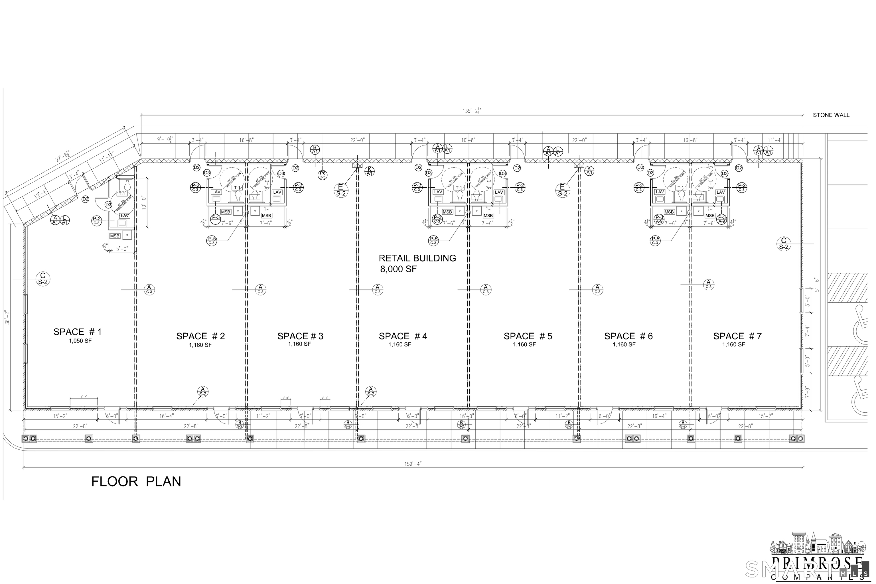
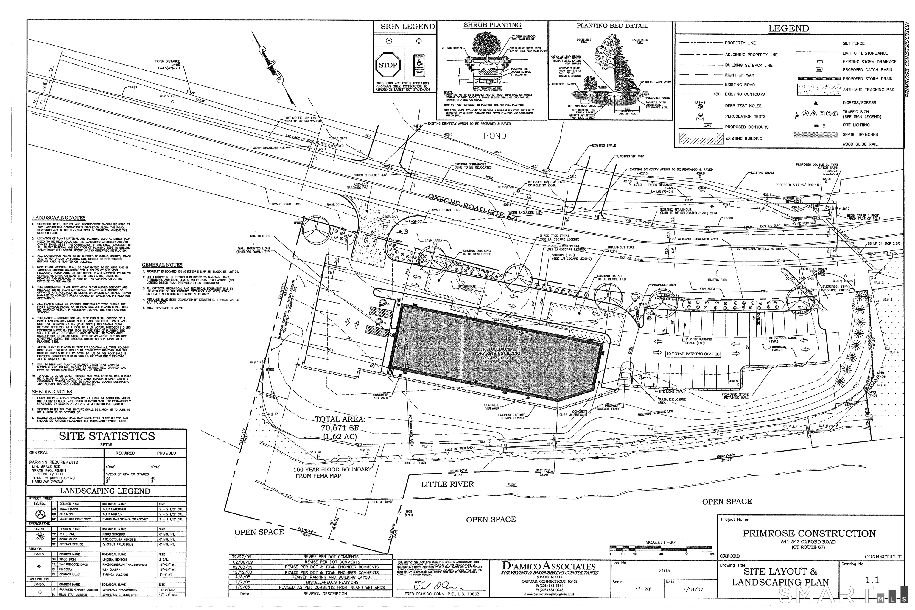
Vacant lot that was previously approved for 8,000 square foot Retail Strip Center. Conveniently located between I-84 and Route 8 just north of Quarry Walk. Site plan and plans available for 8,000 square foot building.
Save
Ask
Tour
Hide
Listing Snapshot
Price
$650,000
Days On Site
5 Days
Bedrooms
N/A
Inside Area (SqFt)
N/A
Total Baths
N/A
Full Baths
N/A
Partial Baths
N/A
Lot Size
3.75 Acres
Year Built
N/A
MLS® Number
24158625
Status
Active
Property Tax
$2,863
HOA/Condo/Coop Fees
N/A
Sq Ft Source
N/A
Friends & Family
Recent Activity
| 6 days ago | Listing updated with changes from the MLS® | |
| 6 days ago | Listing first seen on site |
General Features
Acres
3.75
Property Sub Type
Unimproved Land
Zoning
OPD
Save
Ask
Tour
Hide
Exterior Features
Frontage
500
Lot Features
Cleared
Road Frontage
State Road
Listing courtesy of Steven Lage of Coldwell Banker Realty Office Phone: (203) 452-3700
Broker Contact: (203) 521-7757
The data relating to real estate for sale on this website appears in part through the SMARTMLS Internet Data Exchange program, a voluntary cooperative exchange of property listing data between licensed real estate brokerage firms, and is provided by SMARTMLS through a licensing agreement. Listing information is from various brokers who participate in the SMARTMLS IDX program and not all listings may be visible on the site. The property information being provided on or through the website is for the personal, non-commercial use of consumers and such information may not be used for any purpose other than to identify prospective properties consumers may be interested in purchasing. Some properties which appear for sale on the website may no longer be available because they are for instance, under contract, sold or are no longer being offered for sale. Property information displayed is deemed reliable but is not guaranteed. Copyright 2026 SmartMLS, Inc.
Last checked: 2026-03-16 03:47 AM UTC.
The data relating to real estate for sale on this website appears in part through the SMARTMLS Internet Data Exchange program, a voluntary cooperative exchange of property listing data between licensed real estate brokerage firms, and is provided by SMARTMLS through a licensing agreement. Listing information is from various brokers who participate in the SMARTMLS IDX program and not all listings may be visible on the site. The property information being provided on or through the website is for the personal, non-commercial use of consumers and such information may not be used for any purpose other than to identify prospective properties consumers may be interested in purchasing. Some properties which appear for sale on the website may no longer be available because they are for instance, under contract, sold or are no longer being offered for sale. Property information displayed is deemed reliable but is not guaranteed. Copyright 2026 SmartMLS, Inc.
Last checked: 2026-03-16 03:47 AM UTC.
Neighborhood & Commute
Source: Walkscore
Disclosure: Community information and market data powered by Constellation Data Labs. Information is deemed reliable but not guaranteed.
Save
Ask
Tour
Hide