0 Long Hill RoadGuilford, CT 06437



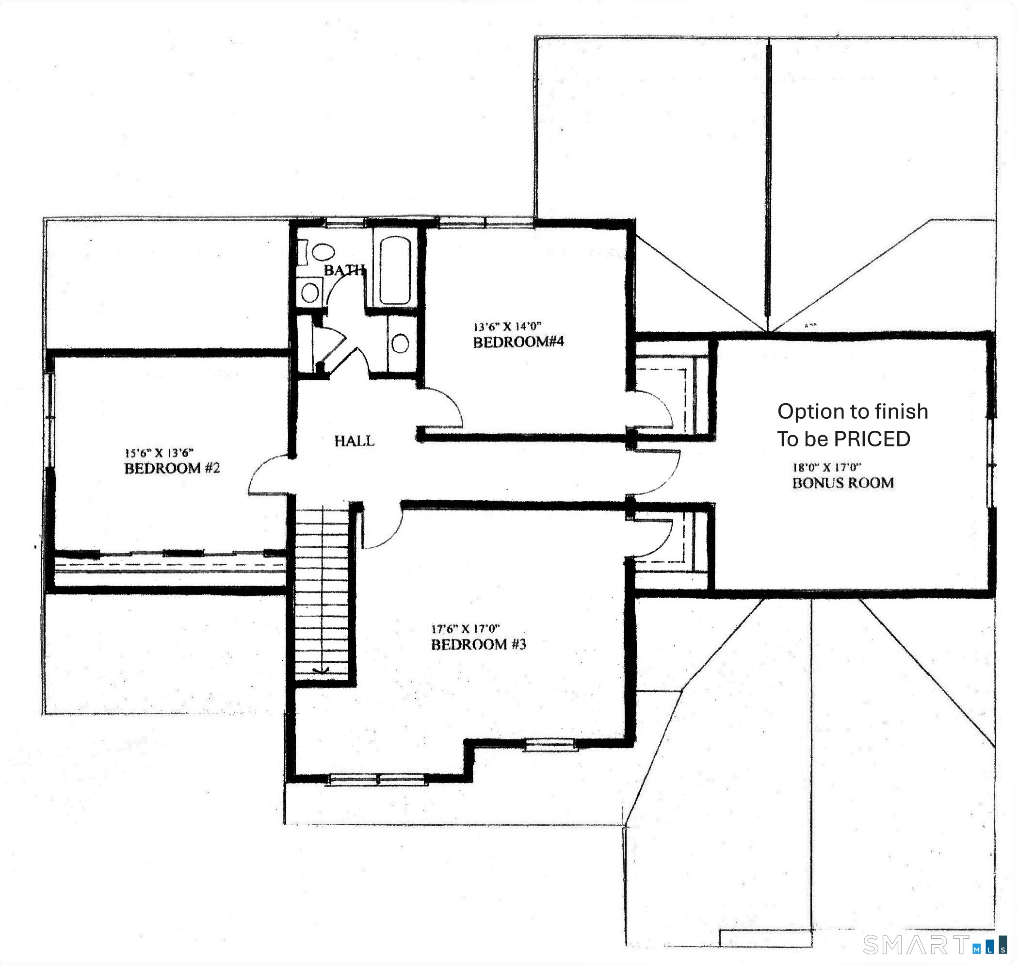
Here is your opportunity to build this beautifully designed 2,814 sq ft Cape-style home privately situated on a rear lot! This thoughtfully crafted To Be Built home blends classic New England charm with today's clean farmhouse aesthetic - board-and-batten accents, striking black windows, and timeless architectural lines. The open-concept main level is designed for today's lifestyle, featuring a spacious kitchen with center island and walk-in pantry, flowing seamlessly into the dining area and inviting family room. A first-floor primary suite option offers flexibility, complete with a walk-in closet and well-appointed bath. A private home office, mudroom, and separate laundry room complete the first floor. Upstairs, three generously sized bedrooms and a full bath create comfortable accommodations. Additionally, there is the option to expand over the garage or finish additional space in the walkout basement. The opportunity to personalize finishes make this a rare opportunity to build your dream home in a secluded yet convenient location.
| 2 weeks ago | Listing updated with changes from the MLS® | |
| 2 weeks ago | Listing first seen on site |
The data relating to real estate for sale on this website appears in part through the SMARTMLS Internet Data Exchange program, a voluntary cooperative exchange of property listing data between licensed real estate brokerage firms, and is provided by SMARTMLS through a licensing agreement. Listing information is from various brokers who participate in the SMARTMLS IDX program and not all listings may be visible on the site. The property information being provided on or through the website is for the personal, non-commercial use of consumers and such information may not be used for any purpose other than to identify prospective properties consumers may be interested in purchasing. Some properties which appear for sale on the website may no longer be available because they are for instance, under contract, sold or are no longer being offered for sale. Property information displayed is deemed reliable but is not guaranteed. Copyright 2026 SmartMLS, Inc.
Last checked: 2026-03-16 12:26 AM UTC.
Did you know? You can invite friends and family to your search. They can join your search, rate and discuss listings with you.